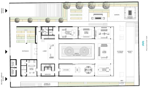
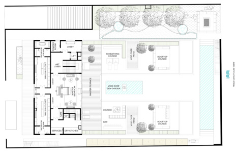
About Property
Welcome to Waterfront Living at The Ritz-Carlton Residences, Creekisde, Dubai
Experience a life of ease and luxury at The Ritz-Carlton Residences and Mansions, where waterfront living meets the highest standards of wellness and luxury experiences. Situated in the picturesque location of Creekisde, Dubai, these Residences offer a spacious area designed to optimize health and happiness.
Each Residence is fully furnished with international high-end brands and designer pieces, meticulously crafted by award-winning architects and designers to meet the highest standards of life experience. With a limited collection, the Residences adhere to the WELL Certification Standards and are complemented by ultra-high-end leisure areas, an exclusive spa, and wellness facilities, all of which meet the WELL Health-Safety Rating.
From the architectural forms to the materiality and landscape, every aspect of The Ritz-Carlton Residences is designed to reinforce the concept of human and natural wellness. The layout is oriented to maximize the connection between residents and the surrounding views and amenities, offering a harmonious experience in every aspect.
Embrace waterfront living at The Ritz-Carlton Residences, Creekisde, Dubai, where luxury, wellness, and natural beauty come together in perfect harmony. Prices for these exclusive Residences range from 265,637,000 AED to 290,348,000 AED, offering a truly high-end living experience in an unparalleled location.
Is This Home Your Lifestyle Match?
Check your compatibility with this property and see if it fits your lifestyle requirements! Tap the button to find out now.
Location
The Ritz-Carlton Residences, Creecside, DubaiExpected ROI
Want to see the expected return on investment? Login to see the details.
Layouts and Prices
Payment Plans
Simplify Dubai Property Ownership with Kyna
Express Your Interest
Easy Booking
Your Joy Begins!
Photos





