About Property
Welcome to Samana Barari Views at Majan, the premier residential development by Samana Developers, offering luxurious apartments with top-notch amenities and services. Situated in the vibrant Majan neighborhood of Dubai, this upscale project ensures a sophisticated urban lifestyle paired with tranquility and convenience.
Located in the heart of Majan, Samana Barari Views provides easy access to key areas in Dubai, making everyday life convenient and enjoyable. This thriving neighborhood is surrounded by top-rated schools, shopping centers, and entertainment hubs, making it an ideal place to call home.
Residents of Samana Barari Views will enjoy a range of exclusive amenities, including a shared pool, concierge service, broadband internet, and a designated kids' play area. The modern lobby welcomes residents and guests with its contemporary design and stylish decor.
Choose from a variety of meticulously designed apartments, ranging from AED 826,200 to AED 1,927,800, designed to cater to your unique lifestyle and preferences. Live in luxury and comfort at Samana Barari Views, where every detail has been carefully considered to provide the ultimate residential experience.
Is This Home Your Lifestyle Match?
Check your compatibility with this property and see if it fits your lifestyle requirements! Tap the button to find out now.
Amenities
Location
Dubai, Majan, Samana Barari ViewsExpected ROI
Want to see the expected return on investment? Login to see the details.
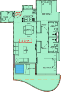
Layouts and Prices
Transaction History
See how this property's price has changed over time to get a better sense of its current worth.
Payment Plans
Simplify Dubai Property Ownership with Kyna
Express Your Interest
Easy Booking
Your Joy Begins!
Photos
































