Takaya
About Property
Welcome to Takaya in Dubai Motor City
Discover the latest and magnificently planned mixed-use development by Union Properties, situated in the heart of Dubai Motor City. Takaya offers a range of luxurious apartments, villas, and townhouses, spanning over 2 million square feet of gross built-up area. This grand project stands as a landmark within the community, offering breathtaking views of the iconic Dubai Autodrome and the vibrant greenery of the locality.
Located within the most coveted zone of the city, Takaya exemplifies the latest definition of contemporary and innovative luxury. This mega development is the result of a sought-after collaboration between Union Properties and Octa Properties, offering a range of world-class amenities and upscale community experiences for elites. With 55,000 square feet of retail area, pocket gardens, and upscale amenities, Takaya ensures a luxurious and convenient lifestyle for its residents.
Choose from a variety of residential options, including low-rise townhouses, apartments, and villas in mid-rise buildings, catering to the diverse requirements and desires of the people. Takaya also offers pet-friendly and family-friendly amenities, including a kids' play area, creating the perfect environment for families to thrive.
Indulge in luxury living at Takaya, where prices range from 693,777 AED to 9,958,777 AED, making it an ideal investment for those seeking opulence and convenience in the heart of Dubai Motor City.
Is This Home Your Lifestyle Match?
Check your compatibility with this property and see if it fits your lifestyle requirements! Tap the button to find out now.
Amenities
Location
Takaya, Motor City, DubaiExpected ROI
Want to see the expected return on investment? Login to see the details.
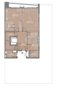
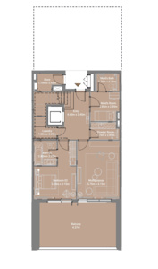
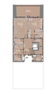
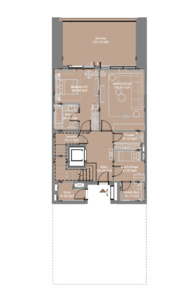
Layouts and Prices
Simplify Dubai Property Ownership with Kyna
Express Your Interest
Easy Booking
Your Joy Begins!
Photos


















