About Property
Welcome to Safa One De Grisogono Tower, the newest luxury development by Damac Properties located in the prestigious Safa Park area of Al Wasl, Dubai. This stunning twin high-rise development offers breathtaking views of the iconic Burj Khalifa, Palm Jumeirah, and Atlantis.
Choose from a selection of beautifully designed 1, 2, and 3 bedroom apartments and duplexes, each offering the epitome of luxury living. Whether you're looking for a spacious family home or a chic city pad, Safa One has something to suit every lifestyle.
Residents of Safa One De Grisogono Tower will enjoy a range of top-notch amenities, including a shared pool, concierge service, 24-hour security, a kids' play area, and a stylish lobby to welcome you home.
With prices ranging from 2,760,000 AED to 25,827,000 AED, there's a home to fit every budget at Safa One. Don't miss out on the opportunity to experience the ultimate in luxury living in the heart of Dubai's most sought-after neighborhood. Contact us today to schedule a viewing and make Safa One your new home.
Is This Home Your Lifestyle Match?
Check your compatibility with this property and see if it fits your lifestyle requirements! Tap the button to find out now.
Amenities
Nearby
School
Location
Safa One, Al Wasl, DubaiExpected ROI
Want to see the expected return on investment? Login to see the details.
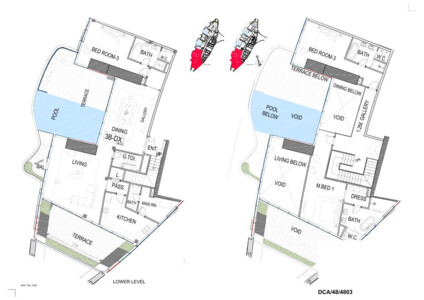
Layouts and Prices
Transaction History
See how this property's price has changed over time to get a better sense of its current worth.
















































