About Property
Discover the exquisite Binghatti Dusk, a stunning development in the vibrant Jumeirah Village Circle (JVC). Boasting 105 luxurious residential units spread across 4 floors and a rooftop, this architectural marvel captures the beauty of twilight with its sleek, modern lines and subtle hues. Located in Al Barsha South Fourth, JVC, Binghatti Dusk offers a range of studio to one-bedroom apartments, each thoughtfully designed to maximize natural light and create inviting living spaces.
Step inside to experience the luminous living environment, with open layouts that exude sophistication and elegance. The premium materials and high-quality finishes throughout each apartment will ensure a luxurious living experience. The seamless merging of functionality and style transforms each living space into a sanctuary of refined elegance.
Indulge in the array of amenities offered at Binghatti Dusk, from the fitness center to the swimming pool, residents here will experience a lifestyle like no other. With prices ranging from 883349 AED to 1813499 AED, now is the perfect time to make the move to Binghatti Dusk and experience luxurious living at its finest.
Is This Home Your Lifestyle Match?
Check your compatibility with this property and see if it fits your lifestyle requirements! Tap the button to find out now.
Location
Expected ROI
Want to see the expected return on investment? Login to see the details.
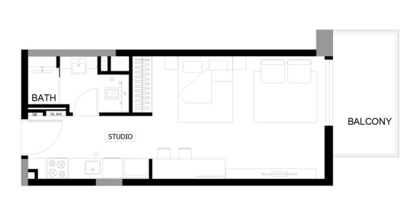
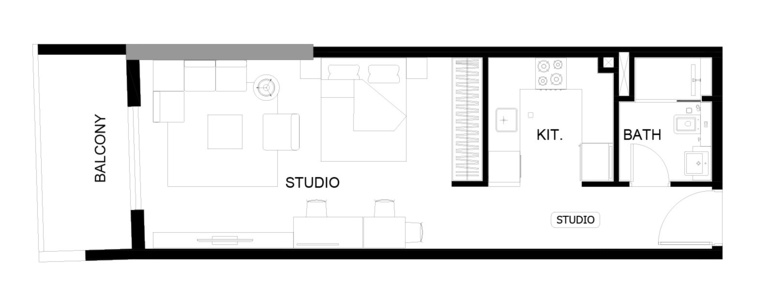
Layouts and Prices
Payment Plans
Simplify Dubai Property Ownership with Kyna
Express Your Interest
Easy Booking
Your Joy Begins!
Photos























